9
3
4° e 5°
330 m²
Affitto
Rif. Agrigento 14
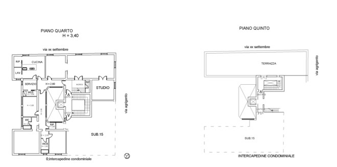
In Via Agrigento 14, ad angolo con Via XX Settembre, nella zona Villabianca–Libertà, proponiamo in locazione un prestigioso immobile all’interno del Palazzo Storico Landolina di Torrebruna, disposto su due livelli (4° e 5° piano).
L’immobile ha una quadratura complessiva di circa 330 mq, di cui circa 280 mq coperti e circa 50 mq di terrazze.
Composizione:
4° piano:
Ingresso su ampio disimpegno
Salone soggiorno pari a tre vani
Studio
Ampia cucina
Due spazi adibiti a lavanderia e ripostiglio
Tre camere da letto
Tre servizi bagno
5° piano:
Terrazza
Dotazioni:
Doppio livello (4° e 5° piano)
Spazi esterni (terrazze)
Soluzione ideale per uso residenziale di rappresentanza o studio professionale.
LE NOTE POSITIVE DI ALESSANDRO:
✔ Ampia quadratura (330 mq)
✔ Presenza di terrazza
✔ Contesto storico prestigioso
✔ Distribuzione funzionale degli spazi
✔ Zona centrale e ben servita
ℹ️ Dettagli
Libero dal 1 febbraio 2026
Visionabile previo appuntamento
Classe energetica G
Copyright 2021 Cajozzo RE - Tutti i diritti sono riservati. - P.IVA 05128710828 - Iscr. ruolo n. 1146
